2025-4-24SPC系列板式磁选机
产品介绍
高强板式磁选机:主要用于钾长石、钠长石、石英砂、高岭土等非金属矿物除铁作业,能有效提高矿物的白度跟品质。具有耗能低、成品矿物无损耗的特点。
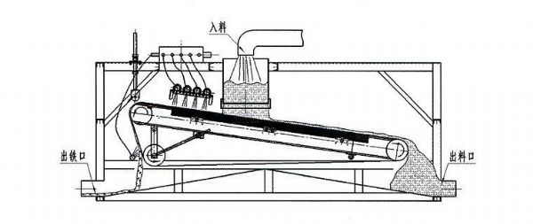
平板式磁选机(平板除铁器),包括机架,机架上设有磁选机构、张紧机构、供水系统和匀料装置,匀料装置位于磁选斜面的低侧与供水系统之间的输送带部分的上方,匀料装置包括上下设置的匀料层,每个匀料层包括带落料网孔的底部和设在底部周边的挡料板,落料网孔均匀分布在匀料层的底部,挡料板首尾连接围成接料口,落料网孔的孔径与矿料的大小相应的匀水装置,包括位于磁选斜面的上方与冲料进水管相接的喷淋管,喷淋管的正下方设有底部带均匀通水孔的淋水器,喷淋管向下开有若干喷淋孔。
本实用新型能够使下落的矿料均匀地分布在磁选机构上,不会堆积成块,在磁选的过程中矿料都能够随磁极的变化实现翻转,大大提高矿料提纯的精度。
技术特点
平板磁选机通过对一千多块强磁铁的有效排布,使整个平板表面磁场强度达15000GS,磁场梯度遍部整个分选的区域。能够有效的的处理各类弱磁性矿石,尤其对于褐铁矿、赤铁矿、钛镁矿、锰矿、石榴石、金钢砂、钾长石、硅微粉里除铁的处理效果较好。也可以用于非金属材料的的高纯度除铁作业,能够有的效降低钾长石、萤石、石英砂中的的含铁量。
工作原理
用带式分选机构,在分选面上从进料到出料,物料在分选区域多次翻滚,把不含磁的尾矿除去,带运转到板选机的脱磁区时带有磁性的矿物被脱磁装置脱掉,来完成选矿的过程,并达到很好的品质,能够获得更大的效益。

技术参数
| 型号 | 处理量 T/n | 功率KW | 外型尺寸 | 机重 | 备注 |
| 600×2000 | 8-10T | 1.5 | 4000×1000×1800 | 2.4T | |
| 800×2000 | 10-13T | 1.5 | 4000×1200×1800 | 2.6T | |
| 1000×2000 | 13-16T | 1.5 | 4000×1400×1800 | 2.8T | |
| 1200×2000 | 16-20T | 1.5 | 4000×1600×1800 | 3T | |
| 1500×2000 | 20-25T | 1.5 | 4000×1900×1800 | 3.5T | |
| 2000×2000 | 30-35T | 1.5 | 4000×2400×1800 | 4T |
产品图片




现场安装



