2024-2-2RCYT系列永磁筒
产品介绍
RCYT系列永磁筒式管道除铁器主要用于过滤粉体或颗粒状物料中的铁磁性杂质。安装于粉状物料输送管道中货管路进出口,将物料中的铁磁性杂质分离出来。内部采用钕铁硼材料组成环状磁系,圆锥形体。料层均匀、顺畅、活动式门扣,去除杂质方便。一般通过法兰或抱箍连接在生产线上,尺寸较小的也可以通过快速卡箍连接,该设备多适用于粮食、化工、建材等行业。
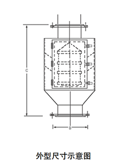
外形尺寸图及安装示意图
RCYA系列永磁筒式管道除铁器包括无磁管道和永磁铁两部分,专用于对封闭管道内非磁性物料的除铁。永磁除铁器内部采用高性能的硬磁材料组成复合磁系。具有体积小、磁力大、重量轻、除铁干净、方便。无能耗、使用寿命长等特点。适合没有输送皮带,只能提供下料溜槽的场合。当散状物料经过管道式永磁铁除铁器时,铁杂物被高场强的永磁铁所吸附,去除铁杂质时,打开管道专用门将杂质取除。主要应用于水泥、化工、塑料、耐火材料、建材等行业的下料管道中去除杂物。


技术参数
| 参数/项目/型号 | 适应产量T/h | 磁场强度≈ mT | 给料粒度mm | 外型尺寸mm | 重 量kg | |||
| A | B | C | ||||||
| RCYT—5 | 5 | 70 | 0.3 ~ 6.0 | 219 | 300 | 600 | 80 | |
| RCYT—10 | 10 | 70 | 0.3 ~ 8.0 | 245 | 330 | 800 | 150 | |
| RCYT—20 | 20 | 70 | 0.3 ~ 8.0 | 273 | 360 | 900 | 231 | |
| RCYT—30 | 30 | 70 | 0.4 ~ 10.0 | 325 | 415 | 1000 | 266 | |
| RCYT—50 | 50 | 90 | 0.4 ~ 10.0 | 377 | 470 | 1100 | 380 | |
| RCYT—80 | 80 | 90 | 0.6 ~ 15.0 | 450 | 540 | 1300 | 426 | |
| RCYT—100 | 100 | 90 | 0.6 ~ 15.0 | 530 | 630 | 1500 | 518 | |
产品图片




现场安装



